Tag Archives: Post Frame Building System Nomenclature

Where is Grade?

Grade is at…

ANSI/ASABE S618 Post Frame Building System Nomenclature has the definition of grade as, “10.1 Grade line (grade level): The line of intersection between the building exterior and the finished ground surface and/or top of the pavement in contact with the building exterior”.

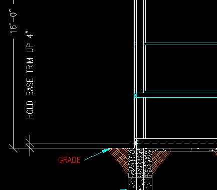
On Hansen Pole Buildings’ Engineered Building Plans, grade is denoted on several pages (S-1, S-3, S-4 and S-5) as being at the bottom of the 2×8 pressure preservative treated skirt board (aka Bottom Girt, Grade Girt or Splash Plank) which is the lowest framing member of any post frame building’s walls. A large scale detail on S-1 shows grade, the bottom of the skirt board and the bottom of a nominal four inch thick concrete slab floor as being all at the same elevation.

 

Seems pretty clear to me, as it has to all but one of the close to 20,000 (sounds like part of the title of a Jules Verne novel) post frame buildings I have personally been involved in.

Well, one of our clients was recently challenged, here is his story:

“My entire problem with this whole project has been the foundation. NOT the framing. I could never get an answer to this question that made any sense. “Do I drill the columns holes and then do put down the gravel, or put down gravel then mess it all up drilling through it??” All my answers kept coming back “at grade” which when I looked up the definition said basically is where you’ve graded the land. Nope. It’s where the gravel ON TOP of the ground is at.
I finally gave up, and asked a friend about the issue since he’s a concrete contractor, and owns a couple of pole barns. (Yeah) Anyway, he said put up the skirt boards, and put the gravel and concrete inside that.
So now my columns are installed to ground level, and my skirt boards are at ground level (dirt, not gravel) and it appears that’s completely wrong.
So, now that I’ve f’d this up I’m trying to figure away out of it. I’m thinking I’m screwed.
Not happy.”

This is a case where looking at the plans for the building might have saved a world of grief and made for a happy client.

26x40 Pole BarnI’ve done it both ways – gravel first and then dig, dig first and then gravel. If the gravel is very tightly compacted and the soil below augers well, it doesn’t make for too big of a mess. The best way to go (in my humble opinion) is to dig the holes and set the pressure treated skirt board bottom to the height of where the top of any gravel inside the building is going to be.

 

There are a couple possible solutions from where the client has gotten himself.

Solution #1 Taper the gravel towards the door openings so the top of the gravel at the doors is where it should be. Advantage – any water which comes inside the building from wet vehicles will drain towards the door openings. Disadvantage – some interior clear height will be lost.

Solution #2 Remove the skirt boards and raise them to the level they should have been at in the beginning. If the roof framing is completed, this will take away (by the thickness of the gravel) interior clear height and result in having to trim each piece of the wall steel.

A variant of this is (provided the roof trusses are not yet installed) is to add another board on top of the skirt board to attach the siding to. This board will need to be the dimension of the thickness of the gravel.